Beschreibung
Carport mit Satteldach „Scotland“ – stilvoller und langlebiger Schutz für Ihr Fahrzeug
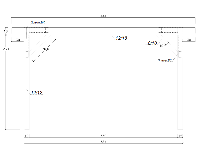
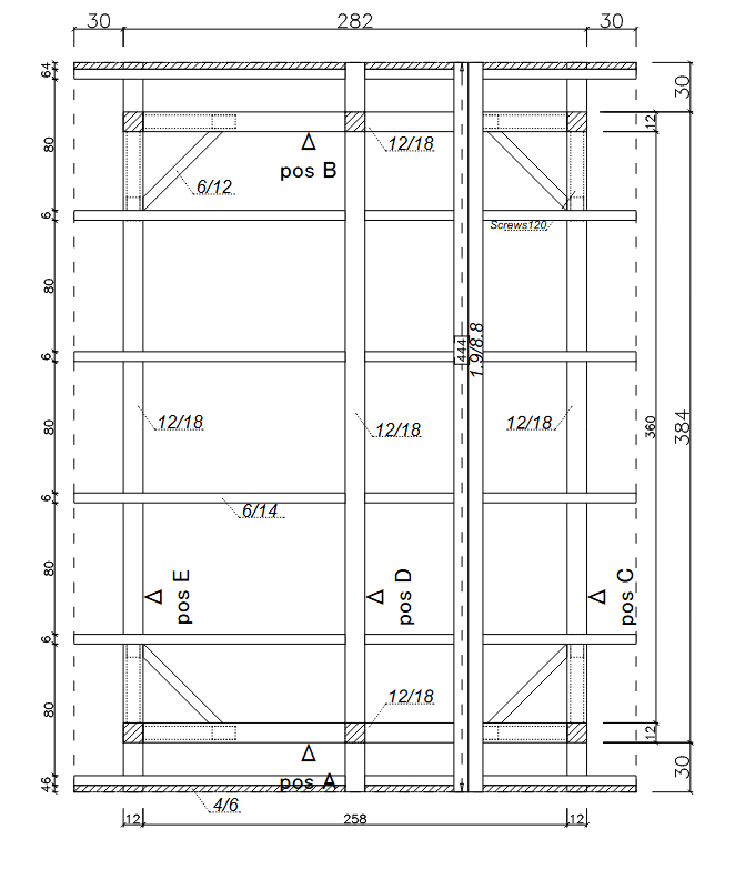
Suchen Sie nach einem stabilen und optisch ansprechenden Unterstand für Ihr Auto? Der Carport Scotland ist ein hochwertiger Einzelcarport mit Satteldach, der modernes Design mit Funktionalität und Langlebigkeit vereint. Aus erstklassigem Brettschichtholz gefertigt, passt er perfekt zu modernen wie auch klassischen Häusern.
Dank des Satteldachs bietet der Carport eine optimale Wasser- und Schneelableitung, was seine Lebensdauer und Sicherheit erhöht. Die großzügige Konstruktion ermöglicht das komfortable Parken eines Fahrzeugs und schützt es zuverlässig vor Regen, Schnee, Hagel und UV-Strahlung.
Die wichtigsten Vorteile des Carports Scotland:
Satteldach – klassische Form, effektive Wasserableitung
Natürliches Brettschichtholz – langlebig, ästhetisch und nachhaltig
Anpassbar – Maße, Farbe und Ausstattung individuell wählbar
Einfache Montage – ideal für Heimwerker und Profis
Modernes Design – stilvolle Ergänzung für jedes Grundstück
Dieser Holzcarport mit Satteldach ist eine Investition in den Werterhalt Ihres Fahrzeugs und eine stilvolle Aufwertung Ihrer Immobilie.















