TS-H28-3024F-DT /300x240cm

2.600,00 3.930,00  inkl. MwSt.

Charmantes Gartenhaus im modernen, minimalistischen Stil. Die klaren Linien und die helle Farbgebung fügen sich harmonisch in jede Umgebung ein, während die robuste Konstruktion Langlebigkeit verspricht.

Das Gartenhaus vereint praktische Funktionalität mit einem Hauch von Eleganz.

Farbendbehandlung (optional)

Auf Wunsch führen wir die fachgerechte Farbbehandlung der Außenflächen sowie von Fenstern und Türen durch. Hierfür ist die Angabe einer RAL-Nummer erforderlich.

Lieferzeit: 6-8 Wochen

Artikelnummer: bh_68 Kategorie:

Beschreibung

Dieser hochwertige Blockhaus-Geräteschuppen mit Flachdach vereint modernes Design mit robuster Funktionalität. Gefertigt aus massivem Holz überzeugt er durch seine stabile Blockbohlen-Konstruktion und eine lange Lebensdauer. Er bietet ausreichend Platz für Gartengeräte, Werkzeuge, Fahrräder oder andere Utensilien, die sicher und wettergeschützt gelagert werden sollen.

Das Flachdach sorgt nicht nur für eine zeitgemäße Optik, sondern bietet auch die Möglichkeit, eine Dachbegrünung (Gründach) anzulegen. Dadurch lässt sich der Geräteschuppen besonders harmonisch in den Garten integrieren und gleichzeitig ein ökologischer Mehrwert schaffen.

Ideal für alle, die Wert auf Qualität, Funktionalität und ein modernes Erscheinungsbild legen.

Zusätzliche Informationen

Farbe

unbehandelt

Material

Holz

Oberfläche

unbehandelt

Holzart

nordische Fichte

Bauweise

Blockbau

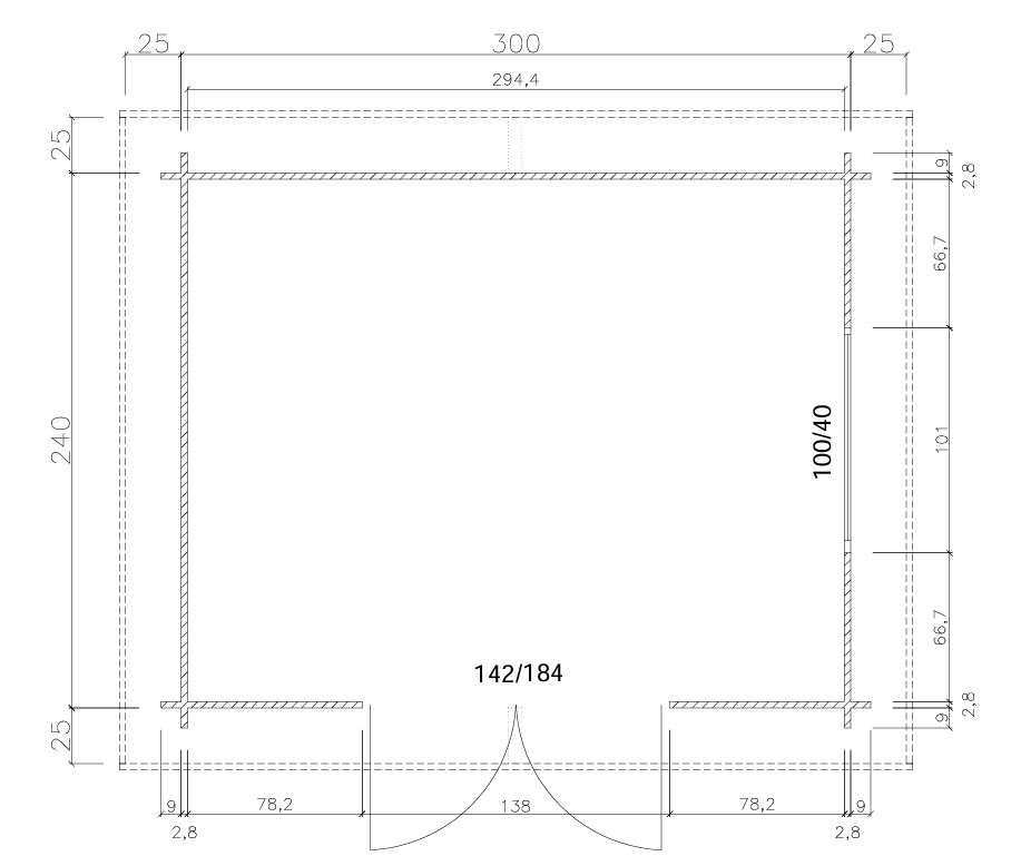
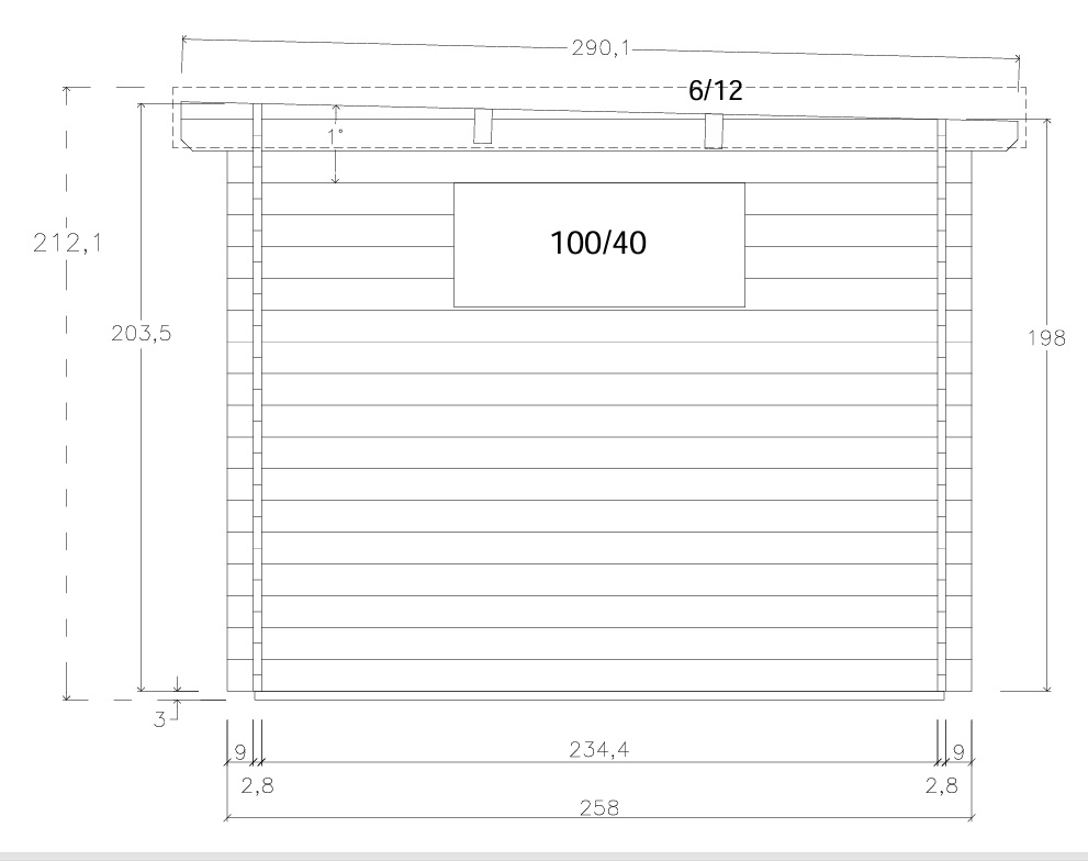
Wandstärke (mm)

28

Wandhöhe Vorne (cm)

207

Wandhöhe Hinten (cm)

201

Dachtyp

Flachdach

Dachfläche (m2)

8,4

Dachüberstand Umlaufend (cm)

25

Glas

Isolierverglasung

Maße Fensteröffnung (cm)

100×40

Türen Durchgangsmaß (cm)

142×184

Anzahl Doppeltüren

1

Anzahl Einzelfenster

1

Dreh-Kipp Fenster

Ja

Gummidichtungen und Silikon (Tür/Fenster)

Ja

Zylinderschloss

Ja

Services

Sollen wir den Aufbau für Sie durchführen?

Nicht jeder hat die Zeit und die Kenntnisse, um alles selbst aufzubauen.

Wir bieten Ihnen an, dass unsere erfahrenen Zimmerleute den Aufbau für Sie durchführen. Wir bauen auch dann weiter, wenn Sie bereits angefangen haben!

Preis für den Aufbau von "TS-H28-3024F-DT /300x240cm": 1300 €

Jetzt Aufbau anfragen
TS-H28-3024F-DT /300x240cm