Beschreibung
Gartenhaus mit großem Dachüberstand – mehr Schutz und längere Lebensdauer
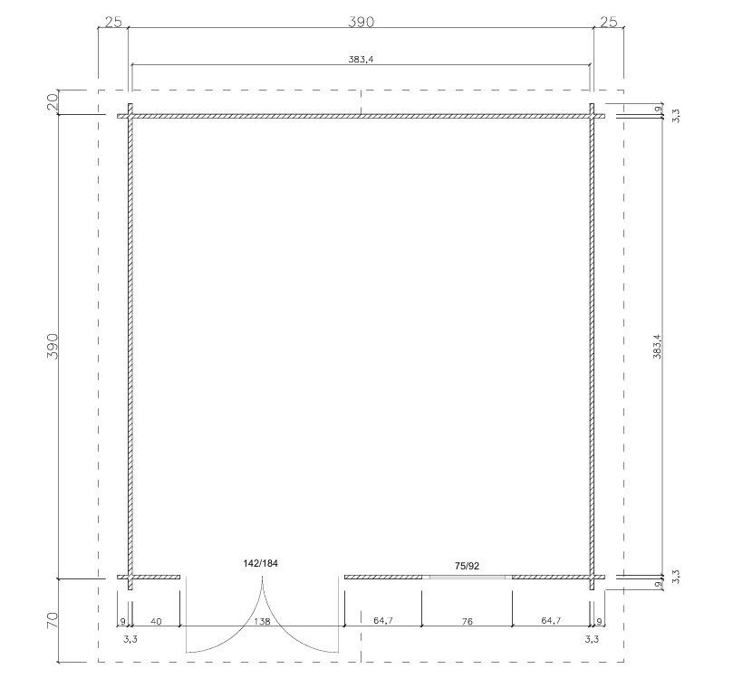
Ein Gartenhaus mit vergrößertem Dachüberstand bietet entscheidende Vorteile in puncto Witterungsschutz, Haltbarkeit und Nutzungskomfort. Der großzügige Überstand schützt die Außenwände zuverlässig vor Regen, Schnee und direkter Sonneneinstrahlung. Dadurch wird das Holz deutlich weniger belastet und bleibt länger formstabil und optisch ansprechend. Besonders bei dauerhaft im Freien stehenden Gartenhäusern zahlt sich ein größerer Dachüberstand aus: Spritzwasser wird reduziert, Feuchtigkeit kann schneller abtrocknen und die Gefahr von Algen- oder Pilzbefall wird minimiert. Das senkt den Pflegeaufwand und verlängert die Lebensdauer der Konstruktion Zusätzlich entsteht durch den erweiterten Dachüberstand ein geschützter Bereich vor dem Gartenhaus – ideal zum Unterstellen von Gartengeräten, Brennholz oder als wettergeschützter Eingangsbereich. Auch Fenster und Türen profitieren von der zusätzlichen Abschirmung vor Witterungseinflüssen. Ob als Gerätehaus, Hobbyraum oder Rückzugsort im Garten: Ein Gartenhaus mit großem Dachüberstand ist eine langlebige, funktionale und optisch hochwertige Lösung für anspruchsvolle Gartenbesitzer.












