H28-3020-ET-EF /300x200cm

2.350,00 3.403,00  inkl. MwSt.

Massives Gerätehaus in Blockbohlenbauweise aus hochwertigem Holz. Stabil, witterungsbeständig und ideal zur Aufbewahrung von Gartengeräten, Werkzeugen oder Fahrrädern.

Farbendbehandlung (optional)

Auf Wunsch führen wir die fachgerechte Farbbehandlung der Außenflächen sowie von Fenstern und Türen durch. Hierfür ist die Angabe einer RAL-Nummer erforderlich.

Artikelnummer: bh_80 Kategorie:

Beschreibung

Gerätehaus aus Blockbohlen – robust, natürlich, langlebig

Dieses Gerätehaus in Blockbohlenbauweise überzeugt durch Stabilität, hochwertige Verarbeitung und eine zeitlose Optik aus massivem Holz. Die passgenau gefrästen Blockbohlen sorgen für hohe Standfestigkeit und eine sehr gute Witterungsbeständigkeit – ideal zur sicheren Aufbewahrung von Gartengeräten, Werkzeugen, Fahrrädern oder Gartenmöbeln.

Dank des natürlichen Werkstoffs fügt sich das Gerätehaus harmonisch in jeden Garten ein. Die massive Holzkonstruktion bietet ein ausgeglichenes Raumklima und eine lange Lebensdauer. Das Gerätehaus eignet sich sowohl für private Gärten als auch für den Einsatz im gewerblichen oder kommunalen Bereich.

Ihre Vorteile auf einen Blick:

  • Massive Blockbohlenbauweise für hohe Stabilität

  • Natürliches, langlebiges Holz

  • Gute Witterungs- und Formbeständigkeit

  • Viel Stauraum für Geräte, Werkzeuge und Zubehör

  • Einfache Montage durch passgenaue Elemente

  • Ideal für Garten, Hof und Außenanlagen

Zusätzliche Informationen

Farbe

unbehandelt

Material

Holz

Oberfläche

unbehandelt

Holzart

nordische Fichte

Bauweise

Blockbau

Wandstärke (mm)

28

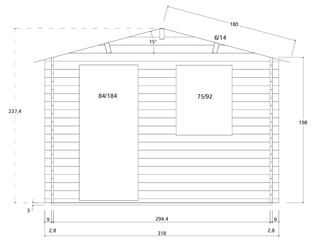
Außenmaß Breite x Tiefe (cm)

300×200

Seitenwandhöhe (cm)

201

Firsthöhe (cm)

245

Dachneigung (º)

15

Dachtyp

Satteldach

Dachüberstand Vorne (cm)

40

Dachüberstand Hinten (cm)

20

Dachüberstand Rechts

25

Glas

Isolierverglasung

Maße Fensteröffnung (cm)

75×92

Tür Durchgangsmaß (cm)

84×184

Anzahl Einzeltür

1

Anzahl Einzelfenster

1

Dreh-Kipp Fenster

Ja

Gummidichtungen und Silikon (Tür/Fenster)

Ja

Zylinderschloss

Ja

Services

Sollen wir den Aufbau für Sie durchführen?

Nicht jeder hat die Zeit und die Kenntnisse, um alles selbst aufzubauen.

Wir bieten Ihnen an, dass unsere erfahrenen Zimmerleute den Aufbau für Sie durchführen. Wir bauen auch dann weiter, wenn Sie bereits angefangen haben!

Preis für den Aufbau von "H28-3020-ET-EF /300x200cm": 1200 €

Jetzt Aufbau anfragen
H28-3020-ET-EF /300x200cm