TS-H28-2424 /240x240cm

2.350,00 3.500,00  inkl. MwSt.

Das Gartenhaus vereint praktische Funktionalität mit einem Hauch von Eleganz.

Farbendbehandlung (optional)

Auf Wunsch führen wir die fachgerechte Farbbehandlung von Fenstern und Türen durch. Hierfür ist die Angabe einer RAL-Nummer erforderlich.

Lieferzeit: 6-8 Wochen

Artikelnummer: bh_62 Kategorie:

Beschreibung

Das Gerätehaus ist eine stilvolle und praktische Ergänzung für jeden Garten. Mit seinem schlichten Design und der klaren Formgebung bietet es eine elegante Lösung zur Aufbewahrung Ihrer Gartengeräte und -accessoires. Die robusten Türen und das schräge Dach, das für eine effiziente Entwässerung sorgt, verbinden Funktionalität mit modernem Aussehen. Die integrierten Fenster erhellen den Innenraum und erleichtern die Organisation Ihrer Utensilien. Dieses Gerätehaus ist nicht nur ein nützlicher Stauraum, sondern auch ein optisches Highlight, das den Charme Ihres Außenbereichs unterstreicht.

 

Allgemeine Produktbeschreibung
– hochwertige Fachhandelsqualität aus Nordeuropäischer Fichte
– gut sortiertes Holz, alles gesundastig und blank
– wird als Bausatz, unbehandelt geliefert, ohne evtl. abgebildetes Sonderzubehör / Dekoartikel.
– inkl. Produktionszeichnung und allgemeiner Montageanleitung.
– massive Tür(en) (Türblatt 42mm) mit Leimholzrahmen, Holzschwellen mit Edelstahlabdeckung und 3 Scharnierbändern (3-dimensional verstellbar)
– gerade Giebelbretter, Dachschalung 19mm-Holzbrettern mit Nut u. Feder, aus Nordeuropäischer Fichte.
– Fußboden (optional) aus massiven 19-mm-Holzdielen mit Nut u. Feder, aus Nordeuropäischer Fichte, mit ausgefälzten, ringsum geschlossenen Fundamentrahmen.
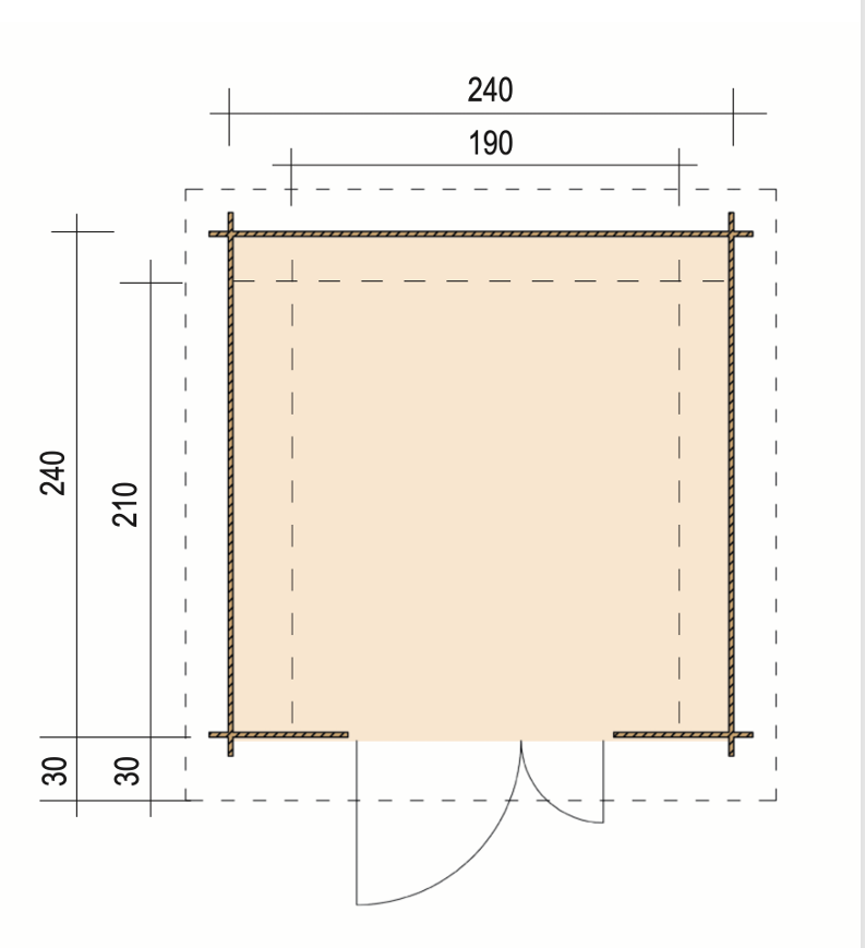
– die angegebenen Grundrissmaße sind Wandaußenmaße.

Zusätzliche Informationen

Farbe

unbehandelt

Material

Holz

Oberfläche

unbehandelt

Holzart

nordische Fichte

Bauweise

Blockbau

Wandstärke (mm)

28

Außenmaß Breite x Tiefe (cm)

240×240

Seitenwandhöhe (cm)

190

Firsthöhe (cm)

233

Dachfläche (m2)

8,7

Dachneigung (º)

20

Dachtyp

Satteldach

Dachüberstand Vorne (cm)

30

Dachüberstand Hinten (cm)

20

Dachüberstand Rechts (cm)

20

Glas

Isolierverglasung

Türen Durchgangsmaß (cm)

130×184

Anzahl Doppeltür

1

Gummidichtungen und Silikon (Tür/Fenster)

Ja

Zylinderschloss

Ja

Services

Sollen wir den Aufbau für Sie durchführen?

Nicht jeder hat die Zeit und die Kenntnisse, um alles selbst aufzubauen.

Wir bieten Ihnen an, dass unsere erfahrenen Zimmerleute den Aufbau für Sie durchführen. Wir bauen auch dann weiter, wenn Sie bereits angefangen haben!

Preis für den Aufbau von "TS-H28-2424 /240x240cm": 1200 €

Jetzt Aufbau anfragen
TS-H28-2424 /240x240cm